Stay
We have four- and eight-bedded sleeping pods for your guest to stay when you are hosting a multiday event at Akar Umbi House.
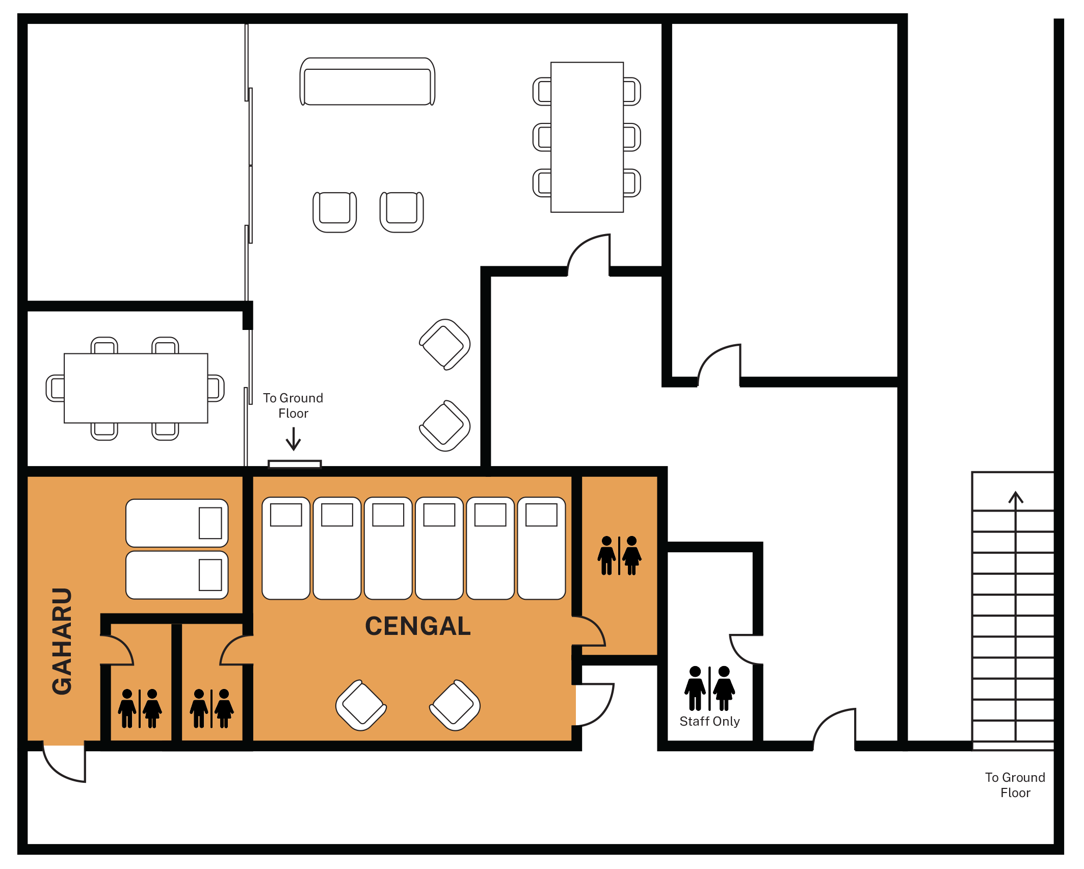
Cengal & Gaharu
While Cengal is known for its durability, Gaharu is a wood known for its aromatic properties and historically used in making perfume. Both Cengal and Gaharu are the names of our stay-in rooms with built-in Japanese-style sleeping pods. Both rooms fit 4 and 8 pax respectively and are equipped with attached bathrooms.
Your sponsorship for this space covers a month’s worth of expenses needed to support a young indigenous child in our Empowered2Teach preschool programme.
Sponsorship amount
- RM80/pod
1
2
3
4
5
6
7
8
9
10
11
12
13
14
15
16
17
18
19
20
21
22
23
24
25
26
27
28
29
30
31
Gaharu
Cengal (Pods)
Nyatoh
Cengal (Counseling Room)
Bakau
Meranti
Jati
Cengal
Maximum Capacity
- 8 pax
(Only for group bookings between 5-8 pax)
Rates
- RM80/pod
Gaharu
Maximum Capacity
- 4 pax
(Only for group bookings between 1-4 pax)
Rates
- RM80/pod
